SketchUp是建筑装潢行业必备的设计类应用,它的功能更加注重对图纸的完善,所以在内部预置了采用先进技术的引擎,功能按键操作更加讲究智能以及便利化的办公,同时该应用提供的模板素材够普通人练习和行业人士二次创作了,图纸绘制完成后就可以直接用三维图像来渲染,允许自由拉伸角度,参数设置更加精确。
1、独特简洁的界面,可以让设计师短期内掌握。
2、适用范围广阔,可以应用在建筑,规划,园林,景观,室内以及工业设计等领域。
3、方便的推拉功能,设计师通过一个图形就可以方便的生成3D几何体,无需进行复杂的三维建模。
4、快速生成任何位置的剖面,使设计者清楚的了解建筑的内部结构,可以随意生成二维剖面图并快速导入AutoCAD进行处理。
5、与AutoCAD,Revit,3DMAX,PIRANESI等软件结合使用,快速导入和导出DWG,DXF,JPG,3DS格式文件,实现方案构思,效果图与施工图绘制的完美结合,同时提供与AutoCAD和ARCHICAD 等设计工具的插件。
6、自带大量门,窗,柱,家具等组件库和建筑肌理边线需要的材质库。
7、轻松制作方案演示视频动画,全方位表达设计师的创作思路。
8、具有草稿,线稿,透视,渲染等不同显示模式。
9、准确定位阴影和日照,设计师可以根据建筑物所在地区和时间实时进行阴影和日照分析。
10、简便的进行空间尺寸和文字的标注,并且标注部分始终面向设计者。

查找任意事物的3D模型
您正在设计的厨房里需要一个烤箱?车道上需要一辆汽车?为动物园添一头犀牛?这些全都能在 3D Warehouse 中找到 —— 这是世界上最大的免费 3D 模型库。
将模型转换成文档
最终,部分 3D 模型发展成了专业的 2D 图集。Sketchup2020版中的 LayOut 可帮助您展示模型,并创造出让您引以为豪的图纸。
定制 SketchUp
SketchUp 扩展程序作为附件工具,可解决令您绞尽脑汁的 3D 建模难题,提供数百种扩展程序让您探索。
模型与文档
有了 LayOut,您可以在文档的任何位置插入 SketchUp 模型视图。这些“视口是有生命的项目视图。当您的模型变化时,所有视口也会随之更新。
绘制美观的图纸
LayOut 以无法比拟的美观方式,将 SketchUp 的“感觉带入二维空间。线条、阴影、纹理、文本、尺寸、标题栏:一切均能完全符合您的心意。
直观的矢量图
LayOut 的绘图工具就像 SketchUp 的工具一样:简单、智能、有趣。您所画的一切都具有矢量智能,从而让缩放和旋转做到极度精确。
标注尺寸、详细描述、解释
使用对齐 SketchUp 模型边缘的尺寸工具,快速设置所显示测量数据的格式、比例和精准度。
查找任意事物的3D模型
3D Warehouse 是全球最大的免费三维模型资源库,并且与 SketchUp 无缝衔接。也就是说,您只需轻松点击几下就能获得周围环境、家具、机器设备、柜子、整个厨房水槽等等。
查找来自可靠制造商的模型
我们与 Herman Miller、Formica、Thermador 等制造商合作,努力将 3D Warehouse 打造成网络上可以找到具体实际物体模型的最佳之地。现在, 当您指定厨房烤箱时,不仅可以获得精美的模型,还能保证准确的几何形状。
查找任意事物的3D模型
3D Warehouse 是全球最大的免费三维模型资源库,并且与 SketchUp 无缝衔接。也就是说,您只需轻松点击几下就能获得周围环境、家具、机器设备、柜子、整个厨房水槽等等。
查找来自可靠制造商的模型
我们与 Herman Miller、Formica、Thermador 等制造商合作,努力将 3D Warehouse 打造成网络上可以找到具体实际物体模型的最佳之地。现在, 当您指定厨房烤箱时,不仅可以获得精美的模型,还能保证准确的几何形状。
以下以SketchUp2020为例,
首先在自己的电脑上找到刚下载到的SketchUp2020安装包,鼠标右键单击,点解压到往前文件夹,等待解压完成;
双击进入新解压出来的SketchUp2020安装包文件夹内;

找到SketchUp Pro 2020安装程序,右键单击以管理员身份运行;

点击更改,选择目的地文件夹,就是安装路径(建议选择C盘以外的其他DEF盘),选择好点击安装;

等待SketchUp2020所有程序安装完成;

SketchUp2020安装成功,点击完成;

在电脑桌面找到SketchUp2020软件图标,双击打开;

先勾选我同意,再点继续;

这里的模板可以根据自己的使用习惯选择,点击任意一个就行;

现在已进入SketchUp2020软件界面,此时软件已经可以在你的电脑上正常一直使用;

一、首先打开SketchUp2021,进入的画面如下,右击上面空白处调整工具栏

二、调整其单位尺寸统一化,点击【窗口】—【模型信息】中的单位设置,绘图一般用毫米单位制,当然你开机的时候也可以选择如图位置的“模板按钮,选择毫米单位

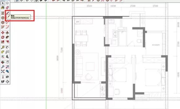
三、导入图片,然后将参考图片移动到原点,一定要将参考图片移动到原点,否则后面即使你将图片的尺寸调整了,但是也调整的不会很精准噢,如果有CAD 文件同样的直接导入

四、点击尺寸测量工具测量,找一处位置测量,我们会发现图片的标注尺寸是3700,但是我们测量出来的尺寸是7433,这会我们可以直接输入3700回车,我们画的尺寸和图纸尺寸就没有什么误差了

五、设置图层,在不同的图层绘制

六、点击量角器,拉出辅助线,运用直线工具依照图纸画出精准的平面图进行建模

七、点击【推拉】工具,选中墙体推拉,输入值为3000,后面的墙体就不用输入数值了,直接双击会自动生成同样高度

八、开始制作门窗部分,在窗位置运用【卷尺】工具量出离地的高度以及窗的高度,再用【矩形】画出窗的边框,也可以独立的处理,制作完后组成一个组再放入模型中

九、用【偏移】工具将窗边框偏移50或者100,数值自定义, 然后把中间这块面推拉成墙体的厚度,再删除

十、墙体内外是一样的,直接把外部的复制进来就行了

十一、窗的边框完成,接下来我们开始制作玻璃,在窗的中间画一个矩形,它会自动捕捉到中心,再把它拆分成两段,中间用直线连接在一起,再用【偏移】工具,偏移拆分的矩形面,数值50

十二、窗的样子基本成型,再用【推拉】工具两个面前后推拉出一个玻璃厚度,完成之后把多余的线删除,把整个窗组成一个组,方便之后处理,所有的窗都是这样做,同样尺寸的可以直接复制过去

1、SketchUp2021怎么安装插件?
可以这样打开sketchup,点击窗口点击系统设置就出来了上图,点击扩展点击安装程序就可以安装,下载好的rbz插件文件了安装好后 在软件工具条上会多出一个叫扩展程序的选项,这样插件就装好了
2、SketchUp2021怎么贴材质?
sketchup自身就可以使用贴图,如果你拥有真是贴图的话即使不渲染也能做到以假乱真的程度。skp的渲染软件,现在有对应skp6.0的vry for sketchup你可以下载一个试试看。
再有就是将已经给好材质的skp导出3ds格式到3d中进行渲染。
如果是室内的话,你可以导出到3ds格式,然后用3d的vr进行渲染,也可以从3d中加好灯光再导出使用lp进行渲染
看了这么多,你下载了SketchUp吗?想要下载最新软件就来软件爱好者好玩的游戏、简单易懂的软件教程、令人耳目一新的游戏玩法这里统统都有,更多精彩不容错过!
虚拟偶像是近期比较火的领域,通过技术捕捉表演人员也就是皮套人的动作神情,同时处理出贴合观众要求的声音,保持所有的角色的话术,直播内容等层面的定期更新,虚拟偶像形象变动甚至是长期的直播间管理都很有帮助,如果有相应的行业发展推广要求,不妨来本站下载Xianfei Mocap System去更新维护。更新日记加入透视相机节制器。改良视频播放。为 Descretion Motion Capture Pro